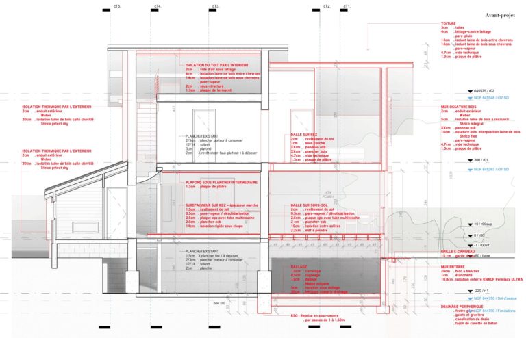
Notice: La fonction _load_textdomain_just_in_time a été appelée de façon incorrecte. Le chargement de la traduction pour le domaine the7mk2 a été déclenché trop tôt. Cela indique généralement que du code dans l’extension ou le thème s’exécute trop tôt. Les traductions doivent être chargées au moment de l’action init ou plus tard. Veuillez lire Débogage dans WordPress (en) pour plus d’informations. (Ce message a été ajouté à la version 6.7.0.) in /home/banarchike/www/wp-includes/functions.php on line 6131 AmKa - bân.architectes