Contenu en pleine largeur
bân.architectes
accueil
l’agence
nos projets et réalisations
partenariats
nous contacter
Instagram page opens in new window
Facebook page opens in new window
LinkedIn page opens in new window
Tumblr page opens in new window
Pinterest page opens in new window
Mail page opens in new window
accueil
l’agence
nos projets et réalisations
partenariats
nous contacter
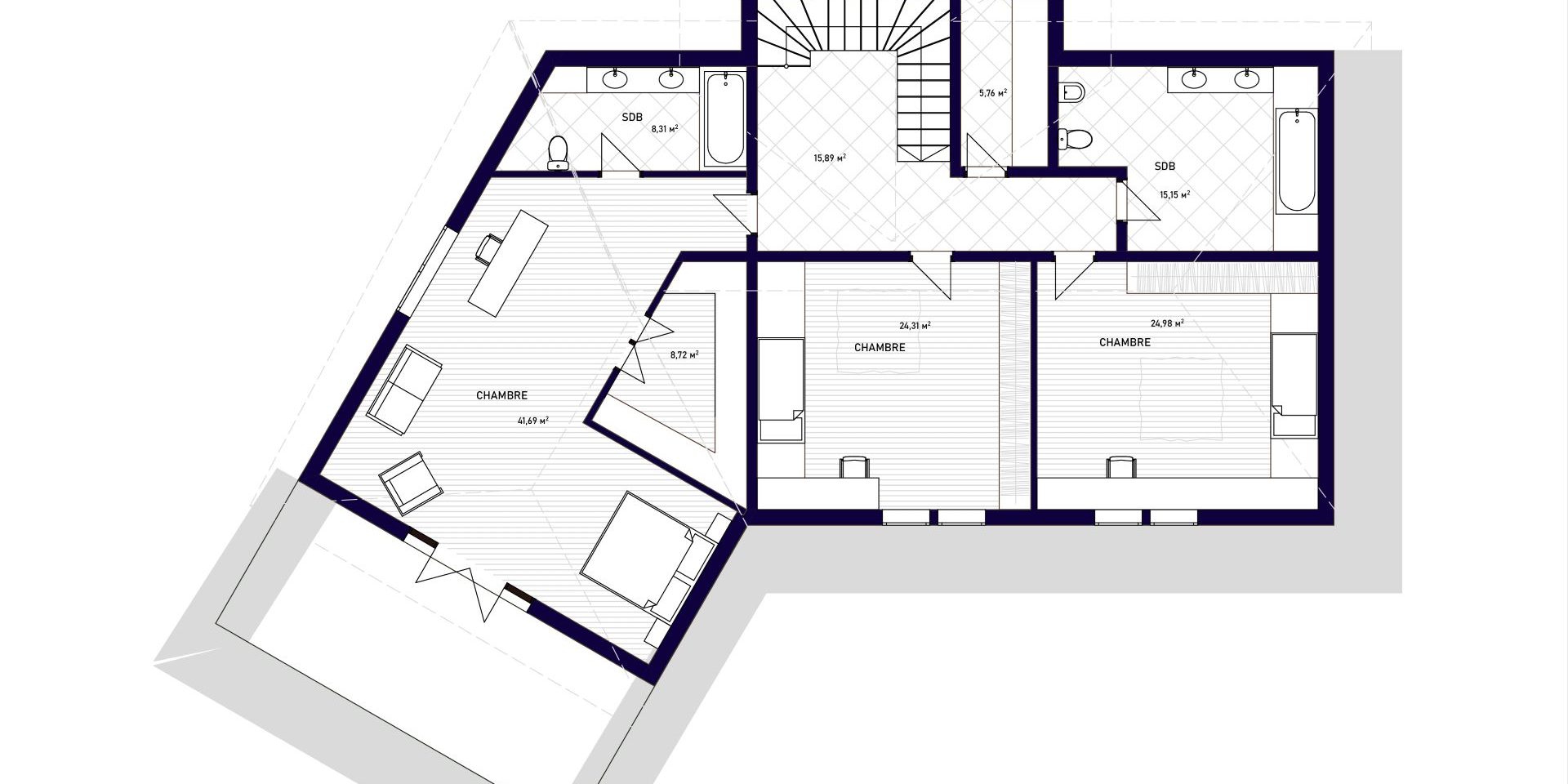
ArDe . 2024 . Ambilly, France
Surélévation et extension d'une maison
Vues
Plans d’aménagements
Go to Top